
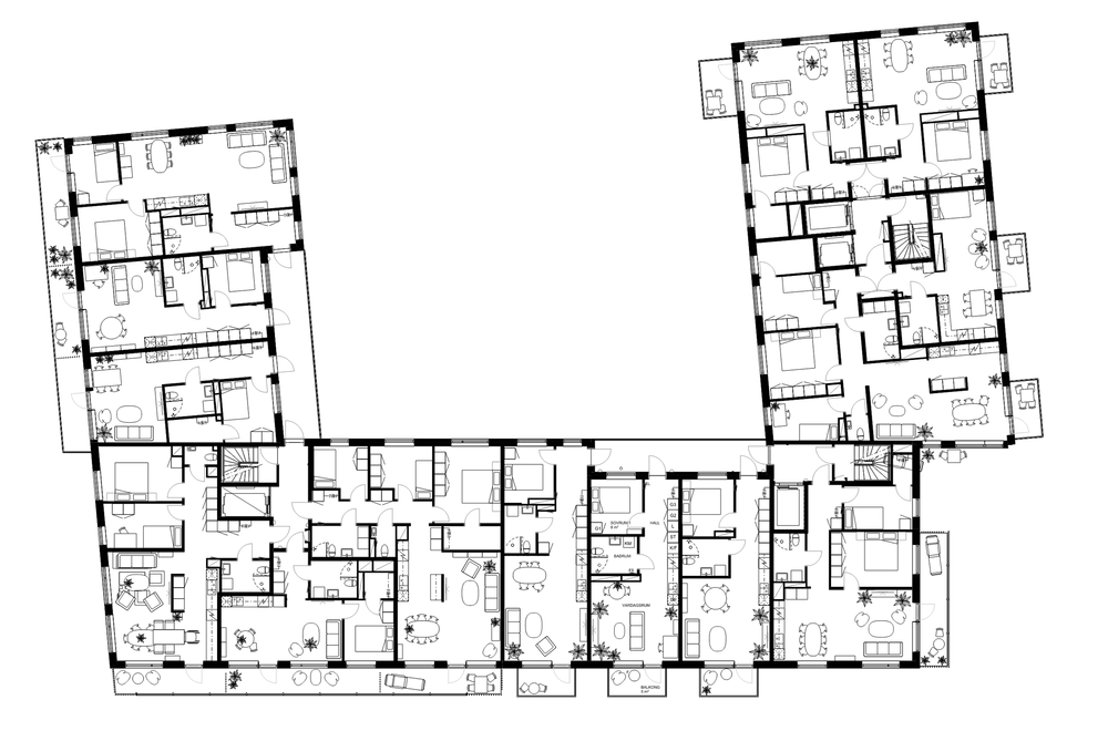
KVARNTORGET
Beställare
Veidekke/Nordr
År
2015-2021
Kvarntorget i Uppsala ritades för Veidekke / Nordr mellan åren 2015-2021 under våra år på Arkitema.
Projektet omfattar ca 80 lägenheter och ca 7.000 m² ljus BTA. Framtagande av detaljplan leddes av Stefan Pollard och projekteringen av Finn Särnö.